秋田建築事務所 あれこれ
温度差がないって、すばらしい。
2025/11/12
こんにちは。寒くなりましたね。
風邪にやられていたり
まだ頑張ってストーブを付けるのを我慢・・・
されておりませんでしょうか。
さすがにもうストーブやエアコンのお世話になっていますよね。
冬になると家で過ごしていてストレスになるのが「温度差」。
リビングはTシャツになれるくらい暖かいけれど
洗面室やトイレ、2階のお部屋は寒い・・・
こういうことありますよね。
そんな「温度差」のお話です。
弊社の戸建住宅の暖房は床下に設置したエアコン1台のみ。
「エアコン1台?
それなら1階は暖かくなっても、2階は寒いじゃないか。
温度差すごいんじゃないか」
と思いますよね。
そんなことないんです。
今回は美原モデル内で温度差調査をしてみます。
まずは床下エアコンの暖房の仕組みです。
エアコンは矢印の箱の中にあるのですが
あたたかい風を基礎に送っています。
そのあたたかさが下から舞い上がり
家全体をあたためています。
さらに床暖効果もあり足元からぽかぽかです。

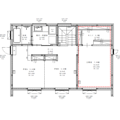
温度を比較するお部屋の位置関係は図の通りです。
1階リビング。
赤点線に囲われている空間です。
床下エアコンもリビングにあります。

続きまして2階主寝室。
こちらも赤点線のお部屋を温度測定します。

温度測定はこのような器具を使います。
その名は「SwitchBot(スイッチボット)」
この温湿度計をモデル内に数か所置き、24時間温度データを収集しています。
データはアプリで随時確認できます。

床下エアコンの可動開始は10/16。
設定温度は23℃です。
こちらはエアコンの壁リモコンです。

次は温度グラフです。
上から順に
・外気温
・1階リビング
・2階寝室
10月の最高・最低気温(室温)です。
外気温のグラフを見ると、前半は20℃を超えるくらい暖かい日が続いていたのですが
中頃には20℃を切り、最低気温も下がってきました。
最低気温が一桁になったので
10/16に床下エアコンを23℃設定で可動開始。
リビングのグラフを見ると
一度落ちた室温も25℃前後をキープしています。
床下エアコンでの暖房に加え、天気が良いと日光効果でそれ以上になることも・・・



注目していただきたいのは、リビングと寝室の温度差。
エアコンは1階にあるにも関わらず、2階にある寝室も20℃以上をキープしています。
極端な温度差が家の中にない為
「暑いな、寒いな」を感じず、いつでも心地よく過ごせます。
あまりいい言葉ではないかもしれませんが
モデルハウスにずっといると「何も感じない」んですよね。
しっかり気密と断熱ができていると
家中どこにいても快適な暮らしを実現できます。
ほっとするあたたかさ。
是非体感してください。

カテゴリ
- アパート リフォーム 施工例(6)
- 、アパート 新築 施工例(36)
- 、一般住宅 新築 施工例(42)
- 、商業施設 新築 施工例(21)
- 、戸建・マンション リフォーム 施工例(16)
- 、秋田建築事務所 あれこれ(29)
アーカイブ
- 2026/
- 1 (4)
- 、2 (3)
- 2025/
- 1 (3)
- 、2 (2)
- 、4 (4)
- 、5 (2)
- 、6 (7)
- 、7 (3)
- 、8 (2)
- 、9 (3)
- 、10 (4)
- 、11 (3)
- 、12 (6)
- 2024/
- 1 (1)
- 、2 (1)
- 、4 (3)
- 、6 (3)
- 、7 (7)
- 、8 (6)
- 、9 (5)
- 、10 (3)
- 、11 (2)
- 、12 (2)
- 2023/
- 1 (1)
- 、3 (1)
- 、5 (3)
- 、6 (4)
- 、7 (1)
- 、8 (3)
- 、9 (5)
- 、10 (7)
- 、11 (1)
- 、12 (4)
- 2022/
- 5 (21)
- 、6 (6)
- 、7 (8)
- 、9 (2)
- 、10 (1)
- 、11 (2)
- 、12 (1)



